Over deze eigendom
KIJKDAG ZATERDAG 31/01 VAN 14U-16U
Kom dit project ontdekken op de kijkdag met een hapje en een drankje!
Unieke kans! Casco woning in het hartje van Eernegem. Rustig gelegen in de Oude Bruggeweg, vlakbij het centrum met verschillende winkels, lokale handelaars, openbaar vervoer, ...
Deze halfopen woning wordt aangeboden in Casco (wind/waterdichte afwerking), waarbij u zelf bepaalt hoe de woning wordt afgewerkt — ideaal om uw eigen touch toe te voegen!
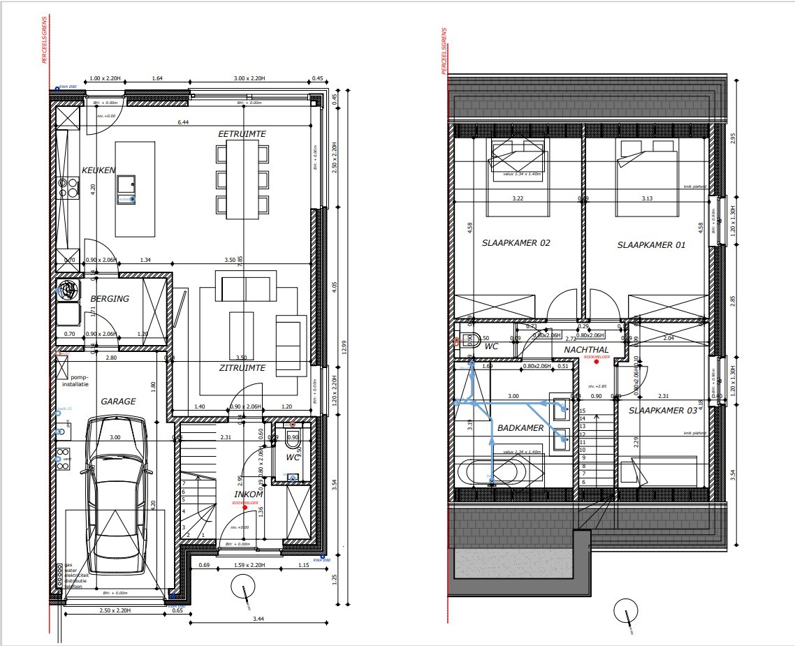
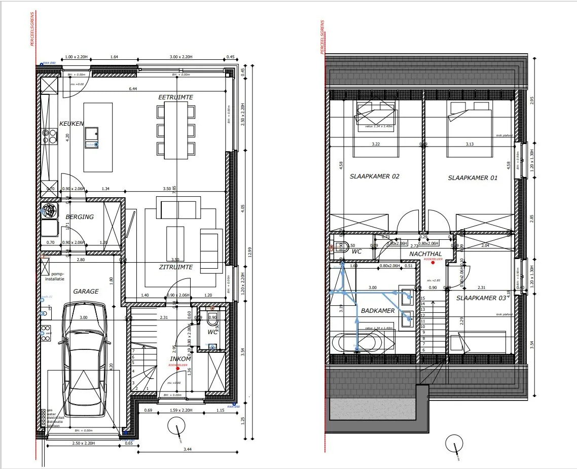
De woning biedt twee volwaardige verdiepingen. Op het gelijkvloers vindt u een ruime, lichtrijke leefruimte met open keuken. Daarnaast beschikt de woning over een berging, praktische garage met oprit, inkomhal én een afzonderlijk gastentoilet. Op de eerste verdieping bevinden zich drie volwaardige slaapkamers, een badkamer en een apart toilet op de nachthal.
Jouw adviseurs
Thierry Cornet
Elize Feys
Algemene info
| Adres: | Oude Bruggeweg 24/Lot 2 Eernegem |
| Referentie: | OU28469 |
| Vraagprijs: | € 263.889 |
| Type: | Woning |
| Beschikbaar vanaf: | Bij oplevering |
| Ligging: | In centrum, Aan rustige weg, Residentieel |
| Perceeloppervlakte: | 265 m² |
| Perceelbreedte: | 10,18 m |
| Perceeldiepte: | 26 m |
| Bebouwde opp.: | 91 m² |
| Bewoonbare opp.: | 124 m² |
| Type constructie: | Traditioneel |
| Bouwjaar: | 2025 |
| Gevelbreedte: | 7 m |
| Bouwlagen: | 2 |
| Algemene staat: | Instapklaar |
Indeling
| Slaapkamers: | 3 (14.34 m², 14.75 m², 9.66 m²) |
| Badkamers: | 1 |
| WC: | 2 |
| Woonkamer: | 27 m² |
| Keuken: | 12 m², Open keuken |
| Berging: | 5 m² |
| Tuin: | 174 m² |
| Tuin breedte: | 10,18 m |
| Tuin diepte: | 8,01 m |
| Tuin oriëntatie: | Zuid |
| Tuin kwaliteit: | Aan te leggen |
| Garage: | 1 plaats |
| Garage Oppervlakte: | 18 m² |
| Garage Types: | Inpandig |
| Garage uitrusting: | Elektrische voorzieningen, Water voorzieningen |
| Parking: | 1 |
| Parking Types: | Privé |
Comfort
| Busknooppunt: | Ja - op minder dan 500 m |
| Bushalte: | Ja - op minder dan 500 m |
| Winkel: | Ja - op minder dan 500 m |
| School: | Ja - op 500 m tot 1000 m |
| Kinderopvang: | Ja - op 500 m tot 1000 m |
| Bank: | Ja - op minder dan 500 m |
| Ontspanning: | Ja - op minder dan 500 m |
| Restaurant: | Ja - op minder dan 500 m |
| Raamwerk: | PVC |
| Dak: | Zadeldak |
| Dakbedekking: | Dakpannen |
| Gevel: | Baksteen |
| Fundering: | In volle grond |
| Beglazing: | Hoogrendementsglas |
| Verwarming: | Warmtepomp - Lucht water |
| Verwarmd water: | Warmtepomp |
| Isolatie: | Volledig geïsoleerd |
Wettelijke gegevens
| Kadastrale Oppervlakte: | 265 m² |
| Stedenbouwkundige vergunning: | Ja |
| Voorkooprecht: | Neen |
| Verkavelingsvergunning van toepassing: | Ja |
| Stedenbouwkundige bestemming: | Woonuitbreidingsgebied |
| Dagvaarding en herstelvordering: | Geen rechterlijke herstelmaatregel of bestuurlijke maatregel opgelegd |
| Overstromingsgevoelig: | Geen overstromingsgevoelig gebied |
| Overstromingsgebied: | Geen afgebakende zones |
| Overstromingskans perceel (P-score): | A |
| Overstromingskans gebouw (G-score): | A |
| Erfgoed: | Geen beschermd erfgoed |