Over deze eigendom
Bent u op zoek naar een handelsgelijksvloers met tal van mogelijkheden?
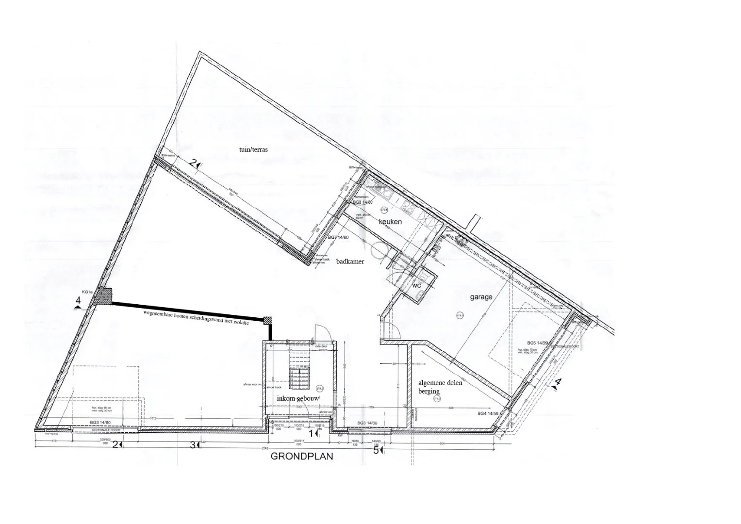
Dit handelsgelijksvloers van 195 m², gelegen in het rustige Klemskerke bij De Haan, biedt een ruimte voor een zelfstandige activiteit, atelier, kiné, fitness, dokterspraktijk, opslagruimte, loods, ..
Momenteel opgedeeld met eenvoudig wegneembare houten wand. Deze afscheiding kan zeer eenvoudig weggenomen worden zodat de ruimte opnieuw 1 ruim geheel wordt.
Ruimte vooraan is voorzien van afzonderlijke garagepoort, electriciteit, verwarming en gietvloer.
Achter deze houten wand bevindt zich een lichtrijke ruimte met grote raampartijen, voorzien van een gietvloer, ingebouwde spots, airco, centrale verwarming en alarm. Bovendien is er een functionele bijkomende keuken uitgerust met o.a. koelkast, keramische kookplaat en microgolf combioven. De badkamer met een inloopdouche met dubbele regendouche en stijlvol lavabomeubel. Er is een apart bureel met een gastentoilet.
Bijkomend is er een tweede grote garage met automatische poort, cv-ketel (Vaillant), regenwaterpomp en wasmachineaansluiting.
Ruim terras en gemeenschappelijke voorzieningen.
Het terras van 48 m² is volledig betegeld en zuidgericht. In het gebouw is een gemeenschappelijke (fiets)berging met een ontkalkingssysteem.
Met een eenvoudige functiewijziging kan je dit pand ombouwen naar een volledige woonst of handelsgelijkvloers met woonst.
Technische info:
- Aluminium ramen met dubbel glas (isolerend)
- Verwarming op aardgas + warmtepomp
- EPC: B-label
- Alarmsysteem
Een bezoek gewenst? Maak snel je afspraak via 059 250 590
Jouw adviseurs
Laïni De Ly
Ilse Van den Kieboom
Algemene info
| Adres: | Nieuwe Steenweg 1/0001 De Haan |
| Referentie: | DE24289 |
| Vraagprijs: | € 375.000 |
| Type: | Kantoor |
| Beschikbaar vanaf: | Bij akte |
| Ligging: | Stad centrum, Residentieel |
| Perceeloppervlakte: | 344 m² |
| Type constructie: | Traditioneel |
| Bouwjaar: | 2009 |
| Algemene staat: | Instapklaar |
Comfort
| Snelweg: | Ja |
| Bushalte: | Ja - op minder dan 500 m |
| Tramhalte: | Ja - op 1500 m tot 2000 m |
| Winkel: | Ja |
| School: | Ja |
| Kinderopvang: | Ja |
| Bank: | Ja |
| Ontspanning: | Ja |
| Restaurant: | Ja |
| Raamwerk: | Draai-/kiepramen, Aluminium |
| Beglazing: | Dubbel, Superisolerend |
| Verwarming: | CV-ketel, Airconditioning, Warmtepomp, Aardgas |
| Airco: | Ja |
| Alarm: | Ja |
| Internet: | Ja |
| Kabel: | Ja |
| Inbouwarmaturen: | Ja |
| Rookdetector: | Ja |
| Parlofoon: | Ja |
Wettelijke gegevens
| EPC Certificaat Nr.: | 20240513-0003242345-RES-1 |
| EPC Index: | 147,00KWh/m²/jaarB |
| EPC Opmaakdatum: | 13/05/2024 |
| Stedenbouwkundige vergunning: | Ja |
| Voorkooprecht: | Neen |
| Verkavelingsvergunning van toepassing: | Neen |
| Stedenbouwkundige bestemming: | Woongebied met landelijk karakter |
| Dagvaarding en herstelvordering: | Geen rechterlijke herstelmaatregel of bestuurlijke maatregel opgelegd |
| Overstromingsgevoelig: | Geen overstromingsgevoelig gebied |
| Overstromingsgebied: | Geen afgebakende zones |
| Overstromingskans perceel (P-score): | B |
| Overstromingskans gebouw (G-score): | B |
| Erfgoed: | Geen beschermd erfgoed |